bool(false) string(3) "042" House of Jazz - Thomas Baecker _ Architekten
<

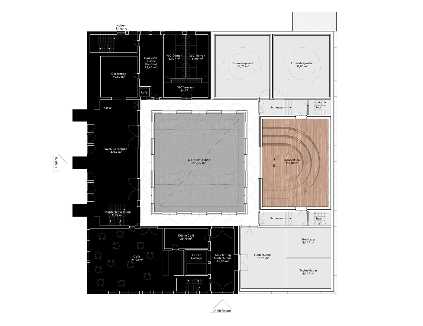
150 House of Jazz

Das in der Mitte des Hofes der Alten Münze frei stehende Bestandsgebäude wird um einen Neubau ergänzt. Wir sehen in der Mitte zwischen Bestandsgebäude und Neubau einen zentralen Erschließungsraum vor (Atrium). Dieser neue Raum, der durch die Anordnung von Bestandsgebäude und Neubau im Mittelpunkt des „House of Jazz - Zentrum für Jazz und Improvisierte Musik (HoJZJIM)“ entsteht, soll als Haupterschließungsraum und multifunktionale Werkstattbühne genutzt werden. Hierfür soll ein Teil des Bestandes abgerissen werden.

Um den akustischen Anforderungen des „House of Jazz (HoJZJIM)“ gerecht zu werden, schlagen wir 2 Maßnahmen vor:

Der Neubau und das zentrale Atrium werden komplett vom oberirdischen Bestandsgebäude und den unterirdischen Bestandsräumen schallentkoppelt. Dadurch soll verhindert werden, dass Schallemissionen aus den Veranstaltungsräumen in den Untergeschossen der Alten Münze in das „House of Jazz (HoJZJIM)“ eindringen können.

Alle Räume mit hohen akustischen Anforderungen werden im Neubau angeordnet. Neben der Schallentkopplung vom Bestand müssen innerhalb des „House of Jazz (HoJZJIM)“ die Räume mit akustischen Anforderungen voneinander getrennt werden. Das lässt sich im Neubau mit geringerem Aufwand realisieren, als im Bestandsgebäude.

Auf dem Dach des neuen Atriums schlagen wir die Errichtung einer ca. 500 qm großen Dachterrasse vor. Dadurch entsteht im Herzen der Alten Münze ein weiterer attraktiver Ort, der den „Oasencharakter“ der Gesamtsituation stärkt.

Den Haupteingang (Zuschauereingang) legen wir an die Westseite des Bestandsgebäudes um die Präsenz des Bestandsgebäudes und den Außenraum für das Gesamtensemble „Alte Münze“ stärken.

Aktuell befindet sich an der Stelle des geplanten Neubaus der „Münzgarten“. Da durch den Neubau dieser Garten entfällt und wir den grünen Charakter des Ensembles erhalten / stärken wollen, schlagen wir vor die Fassade des Neubaus mit einem vertikalen Garten zu versehen. Unser Ziel ist hierbei ein ökologisch nachhaltiges Fassadenkonzept, bestenfalls mit einem echten Nutzgarten. Die Dächer des Neubaus und die Dachterrasse auf dem zentralen Atrium sollten ebenfalls begrünt werden.

Adresse: Alte Münze, Berlin-Mitte
Bauherr: House of Jazz - Zentrum für Jazz und Improvisierte Musik
Programm: Konzertsäle, Proberäume, Büroräume
Größe: 3.400 qm
Leistungsphasen: 1
Planung: 2021
Projektteam: Michael Albertshofer, Michael Fay