bool(false) string(3) "042" Windscheidstraße - Thomas Baecker _ Architekten
<

134 Windscheidstraße

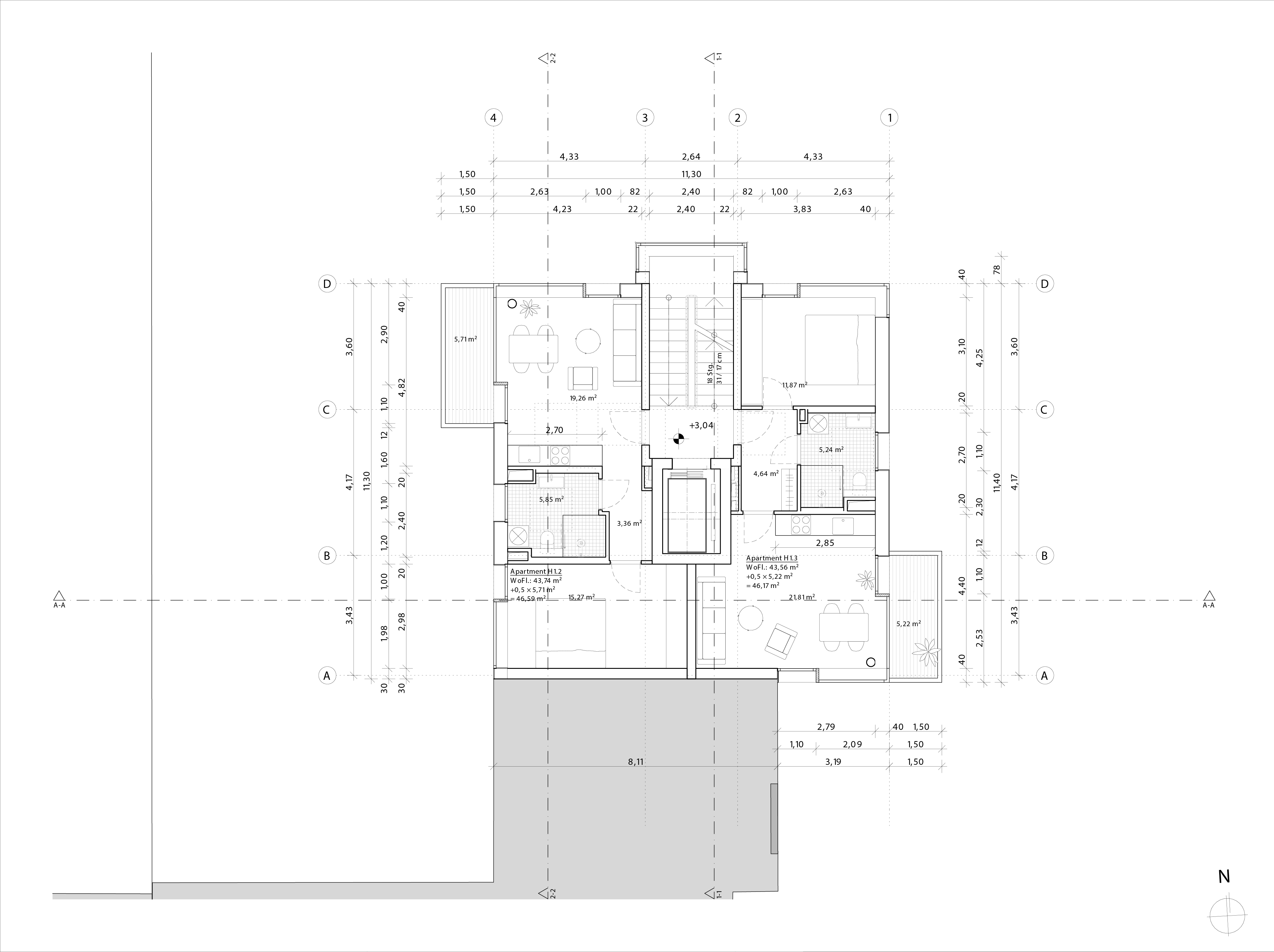
Das Neubau-Ensemble bestehend aus drei Bau- körpern reiht sich als eine Art dritte zeitgenössische Ebene in die bestehende gebaute Umgebung aus Gründerzeitbauten und 60er Jahre-Bauten ein. Durch die lockere Art der Bebauung wird der grüne Charakter des Innenhofes beibehalten. Es werden zahlreiche Durchblicke und Blickbeziehungen für alle Wohnungen (Bestand und Neubau) in den großzügigen grünen Hofraum ermöglicht.

Die Höhen der Gebäude von vier und fünf Geschossen sowie jeweils einem Staffelgeschoss ordnen sich der Blockrandbebauung unter und tragen dadurch den Charakter von Hofhäusern. Während Haus I und III an die bestehenden Brandwände angebaut werden, steht das Haus II als Solitär mitten im Hof.

Durch den Versprung des Brandwandanbaus an der Pestalozzistraße werden Schnittstellen zwischen öffentlichem Straßenraum und privatem Hofraum klar definiert.

Adresse: Windscheidstraße, Berlin-Charlottenburg
Programm: Wohnen
Leistungsphasen: 1 - 9
Planung: seit 2021
Projektteam: Florian Rizek, Filip Kujawski, Michael Fay
Tragwerksplanung: ifb
Haustechnik: Building Applications Ingenieure